Description
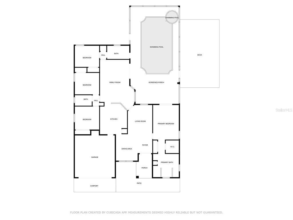
Welcome to your private retreat sitting on almost 5 acres with NO HOA! This 4 bedroom 3 bathroom home has so much to offer! Recent updates include a NEW AC & Water Heater in 2025, NEW 100 gallon water tank for water treatment system in 2024, NEW roof in 2023, LVP flooring installed in 2022 and a NEW propane pool heater in 2019. Additionally, the home is equipped with a Generac Propane Whole House Generator with Auto Switch and leased 100 gallon propane tank. Arriving at the home, you’ll appreciate the front entry gate, for additional security, as well as the beautifully landscaped front yard. Stepping inside you’ll find the living room/dining room combo with new LVP flooring and plenty of natural light. The perfect spot for dinner with family and friends. Entering the kitchen from the dining room, you’ll find ample cabinet space, as well as granite countertops, updated backsplash, stainless steel appliances as well as a breakfast bar, a great spot for a quick meal! The open family room offers plenty of space with sliding doors out to your outdoor oasis! The primary bedroom is generously sized with sliding doors to your pool, and an en-suite featuring a large soaking tub, stand up tiled shower, dual vanities, and spacious closets. The remaining 3 bedrooms have plenty of space and share the remaining 2 bathrooms, one featuring a single sink vanity with tub/shower combo. The pool bathroom features a stand up shower and single sink vanity. Stepping outside you’ll find the perfect Florida retreat! A screened in covered patio and heated pool! Additionally, outside of the pool area you’ll find a wood pergola with solar lighting along with a deck for entertaining. The front half acre of the property is fully fenced in. Zoning allows for farm animals and chickens. This home has it all! Schedule your private showing today!
-
4BEDS
-
4.95ACRES
-
3BATHS
-
01/2 BATHS
-
1,979SQFT
-
$244$/SQFT
School Information
Description
Welcome to your private retreat sitting on almost 5 acres with NO HOA! This 4 bedroom 3 bathroom home has so much to offer! Recent updates include a NEW AC & Water Heater in 2025, NEW 100 gallon water tank for water treatment system in 2024, NEW roof in 2023, LVP flooring installed in 2022 and a NEW propane pool heater in 2019. Additionally, the home is equipped with a Generac Propane Whole House Generator with Auto Switch and leased 100 gallon propane tank. Arriving at the home, you’ll appreciate the front entry gate, for additional security, as well as the beautifully landscaped front yard. Stepping inside you’ll find the living room/dining room combo with new LVP flooring and plenty of natural light. The perfect spot for dinner with family and friends. Entering the kitchen from the dining room, you’ll find ample cabinet space, as well as granite countertops, updated backsplash, stainless steel appliances as well as a breakfast bar, a great spot for a quick meal! The open family room offers plenty of space with sliding doors out to your outdoor oasis! The primary bedroom is generously sized with sliding doors to your pool, and an en-suite featuring a large soaking tub, stand up tiled shower, dual vanities, and spacious closets. The remaining 3 bedrooms have plenty of space and share the remaining 2 bathrooms, one featuring a single sink vanity with tub/shower combo. The pool bathroom features a stand up shower and single sink vanity. Stepping outside you’ll find the perfect Florida retreat! A screened in covered patio and heated pool! Additionally, outside of the pool area you’ll find a wood pergola with solar lighting along with a deck for entertaining. The front half acre of the property is fully fenced in. Zoning allows for farm animals and chickens. This home has it all! Schedule your private showing today!
Related Properties
© 2026 My Florida Regional MLS DBA Stellar MLS. All rights reserved. All listings displayed pursuant to IDX. All listing information is deemed reliable but not guaranteed and should be independently verified through personal inspection by appropriate professionals. Listings displayed on this website may be subject to prior sale or removal from sale; availability of any listing should always be independently verified. Listing information is provided for consumers personal, non-commercial use, solely to identify potential properties for potential purchase; all other use is strictly prohibited and may violate relevant federal and state law. Data last updated 2026-02-12T23:43:57.137.
