Description
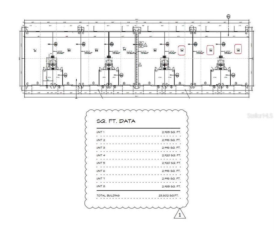
Pre-Construction. To be built. Now pre-leasing, this new construction project along the South US Highway 441 corridor is slated for completion in December 2025. The development features B-5 zoning and free-span warehouses with flexible unit configurations ranging from 2,920 SF to 11,901 SF. Options include up to eight units, each +/- 3,000 SF; up to four units, each 5,918 SF; up to two units, each approximately 11,901 SF; or a combination of varying sizes. Each unit will include 400 SF of office space, ADA-compliant restrooms, 14-foot ground-level roll-up doors, 200 Amp service panels, and mini-split HVAC units for the office spaces. Secure your space now in this highly anticipated development!
-
0BEDS
-
1.06ACRES
-
0BATHS
-
01/2 BATHS
School Ratings & Info
Description
Pre-Construction. To be built. Now pre-leasing, this new construction project along the South US Highway 441 corridor is slated for completion in December 2025. The development features B-5 zoning and free-span warehouses with flexible unit configurations ranging from 2,920 SF to 11,901 SF. Options include up to eight units, each +/- 3,000 SF; up to four units, each 5,918 SF; up to two units, each approximately 11,901 SF; or a combination of varying sizes. Each unit will include 400 SF of office space, ADA-compliant restrooms, 14-foot ground-level roll-up doors, 200 Amp service panels, and mini-split HVAC units for the office spaces. Secure your space now in this highly anticipated development!
Related Properties
© 2026 My Florida Regional MLS DBA Stellar MLS. All rights reserved. All listings displayed pursuant to IDX. All listing information is deemed reliable but not guaranteed and should be independently verified through personal inspection by appropriate professionals. Listings displayed on this website may be subject to prior sale or removal from sale; availability of any listing should always be independently verified. Listing information is provided for consumers personal, non-commercial use, solely to identify potential properties for potential purchase; all other use is strictly prohibited and may violate relevant federal and state law. Data last updated 2026-03-09T19:44:47.183.
